Casa Il Girasole
REPRESENTACIÓN
Via Bruno Buozzi 64, Roma
Luigi Moretti 1950
Proyecto realizado
41.9217448, 12.4821116

La Casa del Girasole, proyectada en Roma a finales de la década de 1950 por Luigi Moretti, constituye una de las obras más densas y complejas de la arquitectura italiana de posguerra. Dentro de este edificio, la escalera, y en particular su desarrollo en la planta baja, adquiere un papel central que trasciende con creces su función utilitaria para convertirse en un verdadero dispositivo arquitectónico capaz de articular historia, técnica, representación y experiencia espacial. Analizar esta escalera implica, por tanto, adentrarse en el núcleo conceptual del proyecto y, al mismo tiempo, en la posición crítica que Moretti ocupa frente al legado del modernismo y la tradición urbana romana. El proyecto de la Casa del Girasole surge en un momento de profunda revisión disciplinar. Tras la Segunda Guerra Mundial, la arquitectura italiana se enfrenta a la necesidad de reconstruir no solo la ciudad física, sino también sus fundamentos culturales. En este contexto, Moretti desarrolla una arquitectura que evita tanto el funcionalismo dogmático como el retorno nostálgico al clasicismo. La Casa del Girasole adopta la tipología de la palazzina romana, edificio residencial burgués de escala media, pero la somete a una reinterpretación crítica que introduce una complejidad espacial y simbólica inusitada. El edificio no se presenta como un objeto autónomo y cerrado, sino como una estructura articulada, atravesada por tensiones formales y conceptuales que encuentran en la escalera su expresión más elocuente.

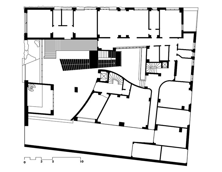
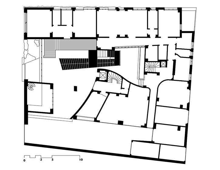
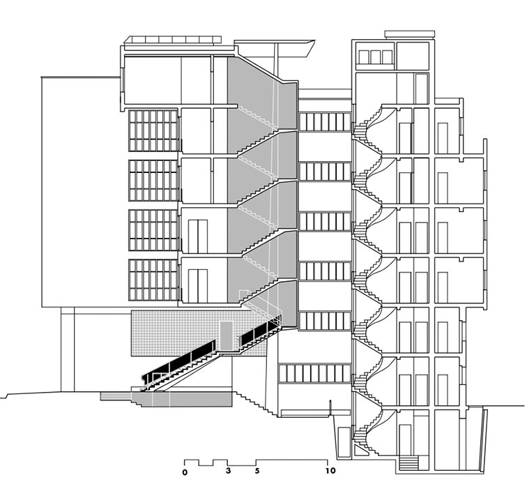
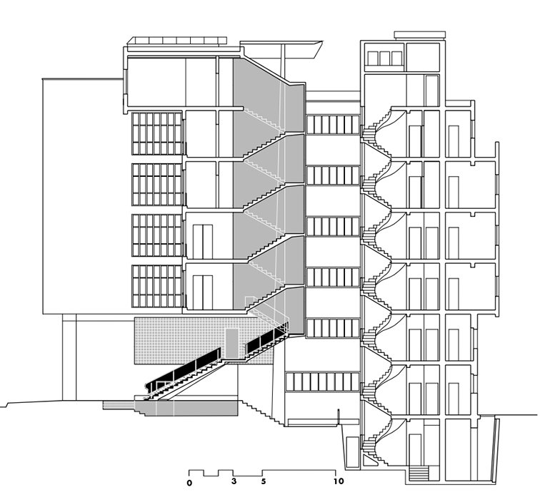
La escalera se sitúa en el corazón del edificio y se hace visible desde la ciudad a través de la profunda hendidura vertical que recorre la fachada principal. Este gesto no es meramente compositivo: al exponer el núcleo de circulación, Moretti convierte el recorrido vertical en un elemento representativo, casi ceremonial. La escalera deja de ser un espacio residual para convertirse en un lugar de transición cuidadosamente coreografiado, donde el movimiento del cuerpo, la entrada de la luz y la percepción de la estructura se integran en una experiencia continua. Desde el acceso, el visitante es conducido a través de un espacio que combina apertura y control, ligereza y monumentalidad.

Especialmente significativa es la resolución de la escalera en la planta baja, donde Moretti despliega una extraordinaria sofisticación técnica y espacial. Aquí, la escalera se manifiesta como una losa ligera que parece flotar en el vacío. Esta condición no es ilusoria, sino el resultado de una precisa estrategia constructiva basada en una sección triangular que concentra la resistencia estructural y reduce visualmente el espesor del elemento. La lógica estructural se convierte así en un instrumento de proyecto, capaz de producir una percepción de levedad que desafía la gravedad sin negarla. La escalera no se apoya pesadamente en muros cerrados, sino que se libera de ellos, afirmando su autonomía espacial. A esta condición se suma el uso de barandillas de vidrio, cuya transparencia elimina cualquier lectura de límite sólido y refuerza la sensación de suspensión. El vidrio, material moderno por excelencia, disuelve la frontera entre lleno y vacío y permite que la luz natural penetre profundamente en el espacio, amplificando la percepción del volumen. La escalera se convierte, de este modo, en un plano casi inmaterial, un elemento que organiza el espacio sin dominarlo, que guía el recorrido sin imponer una presencia opaca. La experiencia del ascenso no es la de atravesar un dispositivo técnico, sino la de habitar un espacio cuidadosamente construido.

El tratamiento material del conjunto refuerza esta dimensión experiencial y simbólica. Moretti recurre a materiales nobles y a una ejecución extremadamente cuidada, construyendo un ambiente que remite deliberadamente a la tradición de la gran villa urbana o del palazzo noble romano. Pavimentos pétreos, revestimientos refinados y una atención minuciosa al detalle generan una atmósfera lujosa y señorial, que eleva el espacio doméstico a una condición representativa. Sin embargo, este lujo no se apoya en la ornamentación historicista ni en la cita literal de elementos clásicos, sino en la calidad intrínseca del espacio, en la proporción, en la continuidad visual y en la relación entre luz y materia. Se trata de una nobleza reinterpretada desde una sensibilidad moderna, donde la representación se construye a través de la arquitectura misma. En este sentido, la escalera de la Casa del Girasole puede leerse como una relectura moderna del papel que desempeñaba el recorrido vertical en el palazzo urbano tradicional. Así como en la arquitectura noble histórica la escalera organizaba la jerarquía espacial y social del edificio, aquí cumple una función análoga, pero traducida a un lenguaje contemporáneo. El acceso y el ascenso no son meros trámites funcionales, sino momentos significativos que articulan la relación entre la ciudad y la vivienda, entre lo público y lo privado. La escalera se convierte, por tanto, en un espacio de mediación, cargado de significado cultural.

Esta complejidad no pasó desapercibida para la crítica arquitectónica posterior. En Complexity and Contradiction in Architecture, Robert Venturi menciona explícitamente la Casa del Girasole como un ejemplo paradigmático de una arquitectura que acepta y explota la ambigüedad. Para Venturi, la obra de Moretti encarna una actitud alternativa al purismo moderno, una arquitectura capaz de sostener significados múltiples y lecturas contradictorias. La escalera, ligera y monumental a la vez, moderna en su técnica y clásica en su función simbólica, es una manifestación clara de esa “complejidad y contradicción” que Venturi reivindica como valor disciplinar. Desde esta perspectiva, la Casa del Girasole ha sido interpretada como una obra anticipatoria de debates que se consolidarían décadas más tarde. No se trata de un edificio posmoderno en sentido estricto, sino de una arquitectura que, ya en la inmediata posguerra, cuestiona la reducción de la disciplina a un conjunto de principios unívocos. Moretti no propone un nuevo estilo ni un manifiesto cerrado, sino una obra abierta, susceptible de ser leída desde múltiples registros: técnico, histórico, simbólico y perceptivo.